Interested In This Property
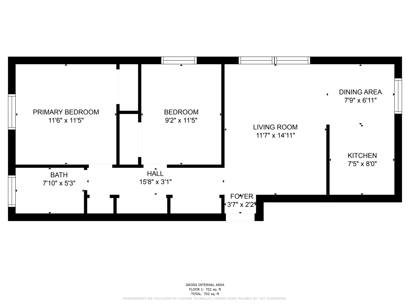
This legal triplex has been owner-occupied for many years. The pride in ownership shows with many updates and improvements. Each unit features 2 bedrooms and 1 bathroom. The residents pay their own gas & electricity, leaving only the water and trash for the owner to pay. Much of the original woodwork has been preserved and refinished. The yard is extra large providing lots of unique spaces for gardening and hosting. Enjoy the 20 x 28 patio space with pergola. Located within walking distance to Powderhorn Park, There are many neighborhood amenities to enjoy. This property is great for an owner occupant or investor. Don't miss your opportunity!
Property Facts
- Year Built: 1905
- Square Footage: 3,226
- Units: 3
- Zoning: R2B
- Parking: Asphalt Driveway and parking lot - 3 spaces
- Exterior: Vinyl
- Heating: 2 Units have water boiler radiators. The top floor has electric baseboard radiators
- Roof: Pitched, Shingles
Unit Description
- Unit 1 - 2 Bedroom, 1 Bath
- Unit 2 - 2 Bedroom, 1 Bath
- Unit 3 - 2 Bedroom, 1 Bath
Property Improvements
- Windows: Most windows have been replaced - 1 in 2021, 7 in 2017, 6 in 2008
- Boiler: Replaced in September 2021
- Main Water Supply Line: Replaced main to meter in 2017
- Water Heater: Replaced in 2017
- Front Porch Roof: Replaced in 2015
- Routine maintenance at turnovers and as needed
List Price: $515,000
To view the property financials and lease expiration dates, please fill out the form on this page.
Information is deemed reliable but not guaranteed. Buyer and Buyer's agent to verify all details.































































